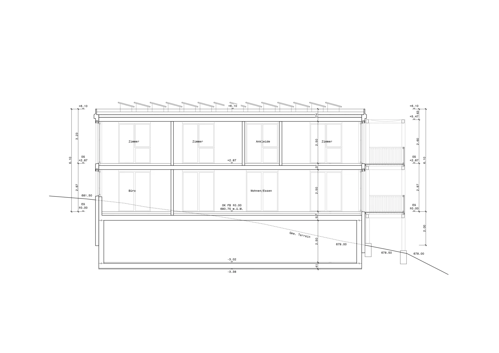
Wohnbauten Ebnat-Kappel

Planung und Ausführung 2024-26, Bauherrschaft: Privat, Bauingenieur: Bleiker + Partner AG, Haustechnikplanung: W+L Partner AG, Brandschutz: QS Brandschutz & Bauberatungen